top of page
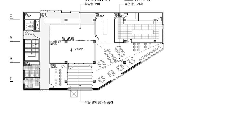
일동 구룡경로당
out of selection
Location : 10, Guryongdong-gil, Sangnok-gu, Ansan-si, Gyeonggi-do, Korea
Design : 2023.01 - 2023.04
Completion : Out of selection
Site area : 728.6 ㎡
Building area : 436.35 ㎡
Total floor area : 1,179.41 ㎡
Building use : Welfare facility
Structure : RC
Exterior finish : Wood panel, Block tile
Interior finish : -
bottom of page






























